De All-in-One Water System wordt volledig geïntegreerd in een keukenkast en biedt direct toegang tot vier soorten water via een multifunctionele kraan. Eenvoudig, elegant en tijdbesparend.
Kokend, gekoeld, gefilterd én bruisend water
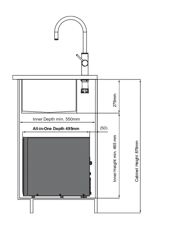
Past perfect in standaard keukenkasten
Zowel voor buisend, plats als kokend water kan je 3 preset volumes instellen
Onze filters combineren slimme technologie met maximale bescherming en smaak – eenvoudig, veilig en betrouwbaar. Ontwikkeld en geproduceerd in Zwitserland,
met de hoogste kwaliteitsnormen als garantie.
DEELTJESFILTER
GEACTIVEERDE KOOLSTOF
IONWISSELAARS
MINERALE STABILISATIE
FIJNE EN MICROPLASTIEK FILTERS
Speciaal geselecteerde filtervliesen houden vuil en deeltjes tegen en bieden zo duurzame filterbescherming, zelfs bij een mindere waterkwaliteit.
Dankzij hun enorme oppervlak zijn onze geactiveerde koolstofcomponenten in staat om ongewenste stoffen zoals chloor en organische verontreinigingen te verwijderen, en onaangename geuren te elimineren. We selecteren en combineren verschillende soorten geactiveerde koolstof om aan de specifieke eisen van elke toepassing te voldoen.
Ionwisselaars verminderen de waterhardheid en voorkomen zo kalkafzetting. Afhankelijk van het type filter is ook gedeeltelijke demineralisatie (ontzuring) mogelijk. Bovendien verminderen ionwisselaars giftige zware metalen zoals lood.
Waardevolle mineralen zoals calcium en magnesium worden gedeeltelijk behouden. Calcium, dat kalkaanslag veroorzaakt, wordt door onze gepatenteerde technologie voor minerale stabilisatie omgezet in een oplosbare vorm om kalkaanslag te voorkomen.
Actieve koolstofblokken en microfiltratiemodules verwijderen efficiënt zelfs de kleinste deeltjes en onzuiverheden. Tegelijkertijd vormen ze een tweede verdedigingslinie tegen organische verontreinigingen.
AquaSwizz is dé kraan die moeiteloos design, functionaliteit en Zwitserse technologie samenbrengt. Onze innovatieve kranen combineren geavanceerde technologie met intuïtief gebruiksgemak, waardoor elke ervaring aan de wastafel of het aanrecht uitzonderlijk wordt. Maak kennis met de perfecte balans tussen stijl en prestaties. Ontdek AquaSwizz.
Connecteer de kraan met onze app en personaliseer zoals je zelf wil.
Je kan hier bijvoorbeeld zelf presets instellen voor een gewenst watervolume, dat nadien eenvoudig is te bedienen via het touchscreen. Per watertype kan je drie verschillende voorgeprogrammeerde volumes instellen. Van een glas water tot een volledige karaf water vullen was nog nooit zo snel en eenvoudig.